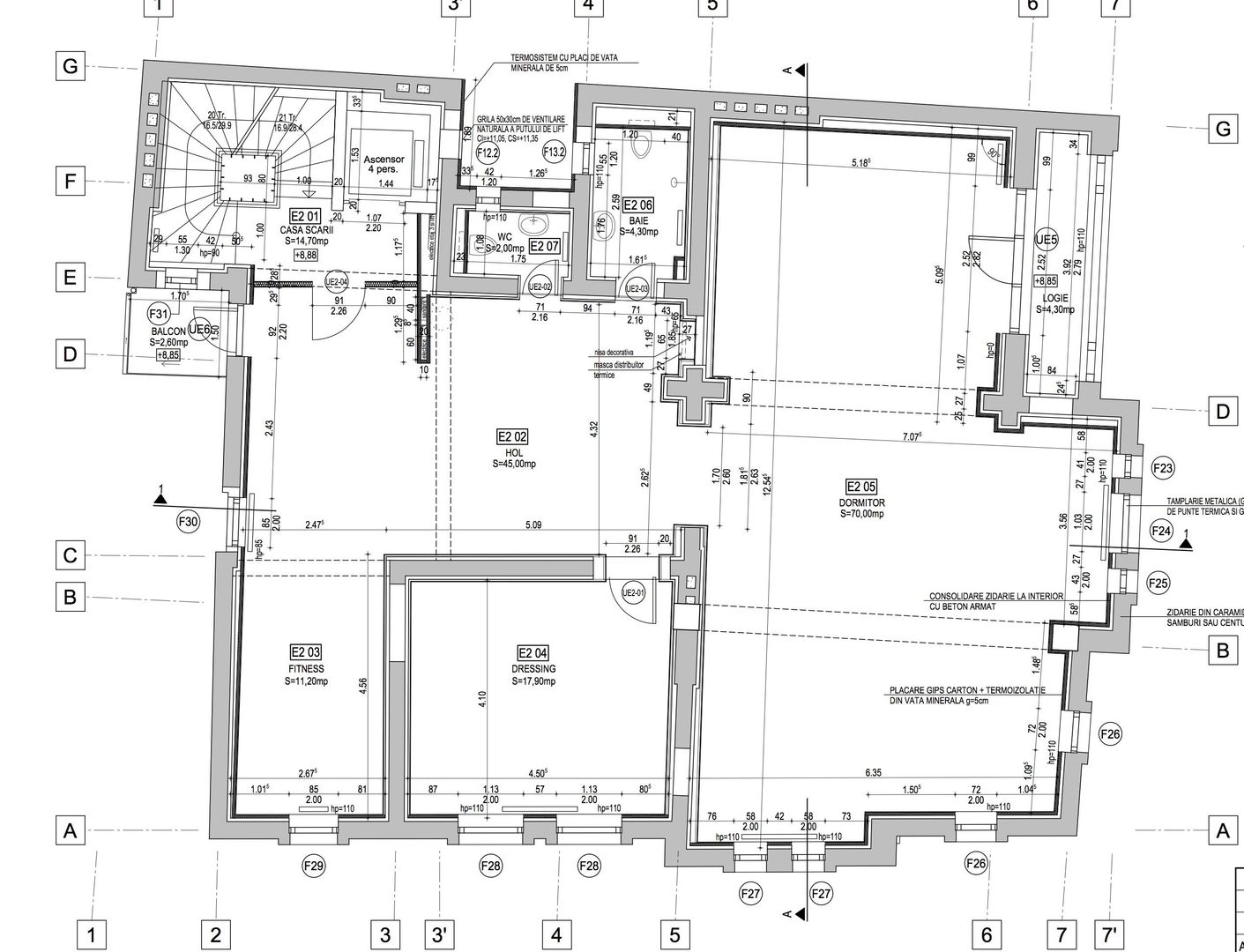
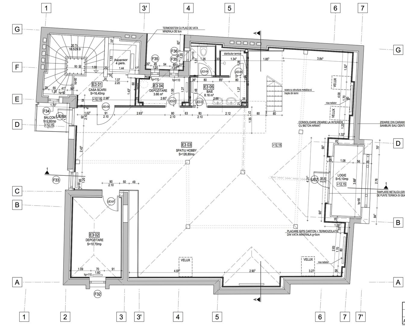
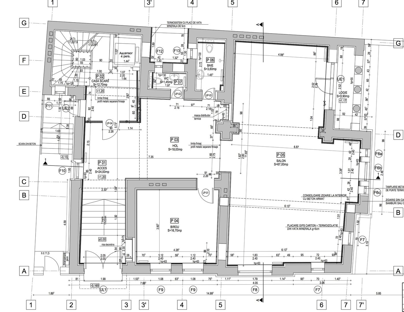
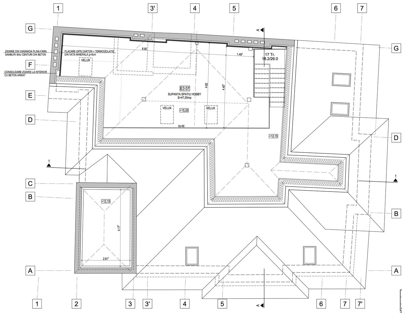
Cladirea este amplasata pe un teren de 287mp si este compusa din subsol, parter, 3 etaje si supanta.
A fost complet consolidata si remodelata intre 2014 si 2016, avand o suprafata finala de 1045mp construiti.
Din vechea cladire s-au pastrat doar zidurile exterioare, care au fost camasuite pe interior prin torcretare si plasa sudata de d=10mm, pe exterior aplicandu-se tencuiala speciala pentru cladiri vechi de la Caparol Germania. Au fost refacute fundatiile si s-au construit 4 stalpi si casa liftului din fier beton, s-au turnat placi de beton armat noi; s-a construit sarpanta noua din lemn stratificat si s-a montat invelitoare din tigla ceramica Tondach. Exista cartea constructiei, precum si mii de fotografii de la fiecare faza a consolidarii.
S-a montat tamplarie de aluminiu Reyners Belgia, speciala pentru cladiri istorice, cu geam termopan.
Cladirea este dotata cu un ascensor Schindler de 4 persoane.
Cladirea este racordata la reteaua de curent electric de mare putere, fiindu-i asigurati 70kW. De asemenea, este cablata pentru retea de internet si intranet.
Pe fiecare etaj exista cate 2 grupuri sanitare, dotate cu obiecte Vileroy&Boch si baterii Grohe.
Incalzirea cladirii este asigurata de 2 centrale Wiesmann si radiatoare Tessi.
Certificat Energetic – Clasa A
Cladirea este dotata cu aer conditionat Daikin multi split, prin tubulatura, montat in plafon in toate incaperile.
Utilitati - Imbunatatiri
- Dotări imobil
- Supraveghere video
- Acoperiș
- Mobilat
- Nemobilat
- Sistem încălzire
- Centrală proprie

































