Un apartament luminos și funcțional, la câțiva pași de Parcul Herăstrău
Astăzi vă prezentăm o proprietate care surprinde prin eleganță și funcționalitate, un apartament modern ce îmbină armonios designul contemporan cu un stil de viață confortabil.
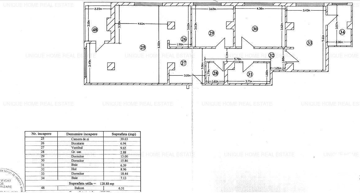
Situat în zona de nord a Bucureștiului, chiar lângă Parcul Herăstrău, apartamentul are o suprafață utilă de 130 mp, excelent compartimentați în 4 camere decomandate: un living spațios și luminos, 3 dormitoare generoase (dintre care unul matrimonial), două băi, bucătărie închisă și balcon.
Compartimentarea eficientă pune în valoare fiecare metru pătrat, iar cromatica neutră, inspirată din stilul scandinav, creează un ambient relaxant și primitor. Culorile deschise (alb și grej) amplifică spațiul, în timp ce corpurile de iluminat atent alese conturează o atmosferă caldă și scenografică.
Proprietatea dispune și de un loc de parcare și o boxă de depozitare, disponibile spre achiziție, separat (30.000 eur la pachet)
Certificat energetic: Clasa A

































