Va oferim spre vanzare un apartament modern compus din 4 camere, aflat in zona Kiseleff, situat la etajul 4 al unui imobil rezidential de lux cu 5 etaje, finalizat in anul 2010.
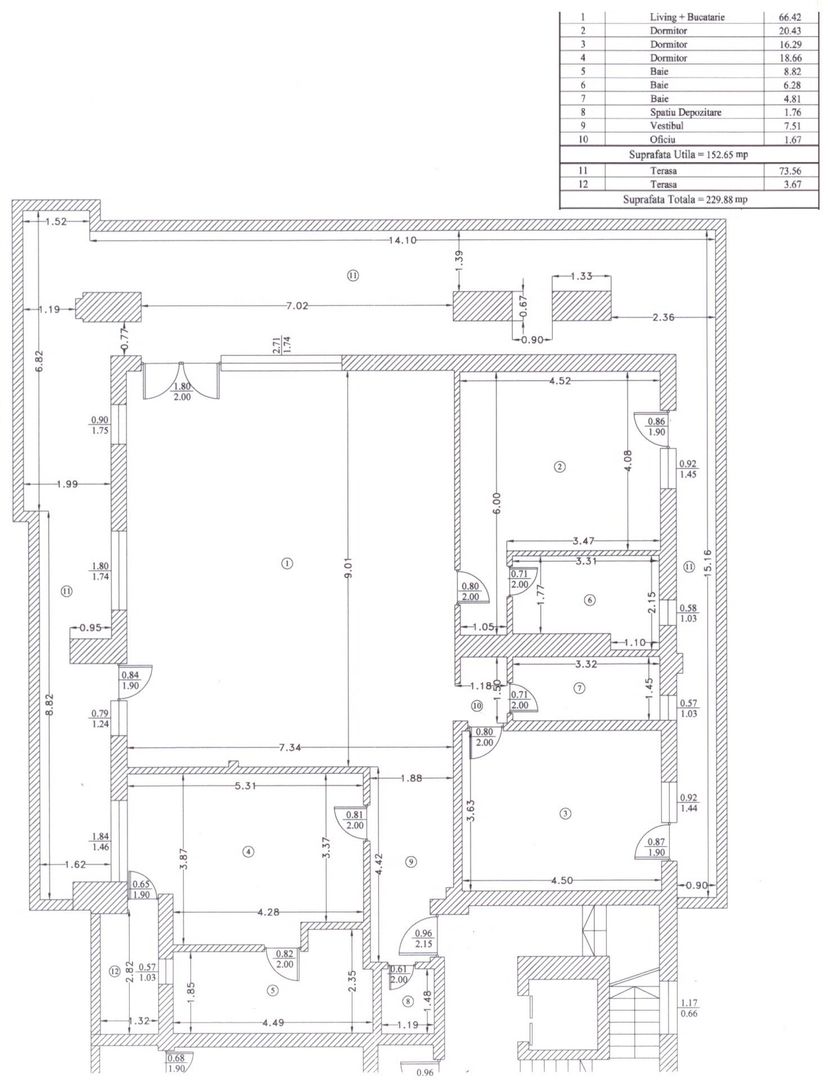
Apartamentul in suprafata utila de 153 mp este compus din zona de living cu zona de dining, bucatarie, 3 dormitoare, 3 bai.
Terasa spatioasa cu o suprafata de 77 mp este locul ideal de relaxare alaturi de familie dupa o zi de agitatie in freamatul capitalei.
Finisajele sunt de buna calitate: parchet, gresie, faianta, aer conditionat, ferestre cu geam termopan, corpuri de iluminat, obiecte sanitare.
Pentru masina dumneavoastra exista asigurat doua locuri de parcare subterane.
Beneficiile zonei: mijloace de transport public, magazine, cafenele, scoala, gradinita, sedii business, sedii bancare, farmacie, restaurant, piata.





















