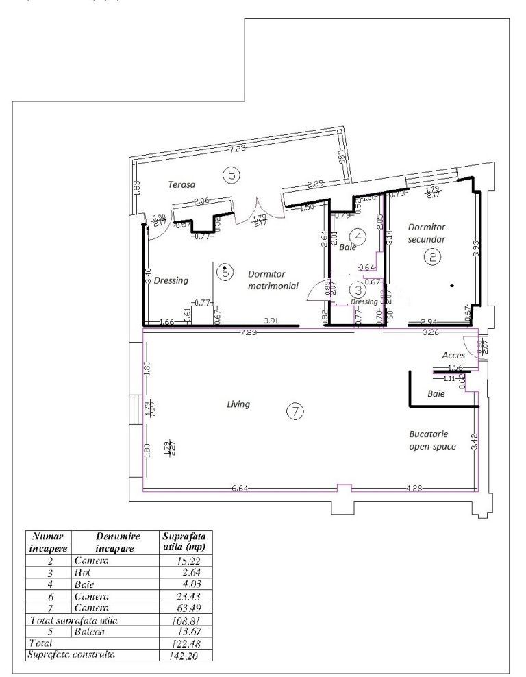
Avem placerea sa va prezentam un apartament spatios cu 3 camere,situat intr-un imobilul amplasat intr-o locatie de prestigiu, langa Parcul Herastrau si Cartierul Francez, una dintre cele mai rafinate zone ale Bucurestiului.
Interiorul este compartimentat astfel: living cu bucatarie deschisa, 2 dormitoare, 2 grupuri sanitare.Apartamentul beneficiaza de o terasa spatioasa in suprafata de 34 mp.
Imobilul dispune de paza permanenta, supraveghere video, lift, parcare subterana, curte amenajata si luminata, fantani arteziene, supermarket, centru spa, doua piscine interioare, restaurant cu specific italian.
Certificat energetic: Clasa A
















